















Vielseitiges Haus mit großem Potenzial in ruhiger Lage
Eckdaten
- Art Haus
-
Lage
An der Kapelle 7
66780 Rehlingen-Siersburg - Kaufpreis 139.000,00 €
- Wohnfläche ca. 270 m²
- Grundstück ca. 316 m²
- Zimmer 8
- Baujahr 1890
- Nutzfläche ca. 100 m²
- Etagenzahl 2
- Heizungsart Öl-Heizung
- Immobilien-ID 25-14
- Provision 3,57 inkl. MwSt.
Immobilie
Dieses einseitig angebaute Haus in einer ruhigen Seitenstraße von Siersburg bietet mit drei Etagen viel Platz und zahlreiche Nutzungsmöglichkeiten. Die Immobilie wurde zuletzt gewerblich als Lagerfläche genutzt, verfügt aber über eine vorhandene Wohnstruktur mit klarer Zimmeraufteilung – ideal für den Umbau zu einem Mehrfamilienhaus, einer Kombination aus Gewerbe und Wohnen oder einem großzügigen Mehrgenerationenhaus.
Das Objekt ist sanierungsbedürftig, bietet aber eine solide Basis für kreative Ideen und individuelle Ausbauprojekte. Hinter dem Haus befindet sich ein kleiner Garten mit Gestaltungsspielraum, während ein großer öffentlicher Parkplatz direkt vor dem Haus für komfortables Parken sorgt.
Highlights:
– ca. 3 Geschosse mit viel nutzbarer Fläche
– flexible Umnutzung möglich: Wohnen, Gewerbe oder beides
– klare Raumstruktur vorhanden
– kleiner Garten hinter dem Haus
– große öffentliche Parkfläche direkt gegenüber
– ruhige, dennoch zentrale Lage in Siersburg
Ob für Investoren, Selbstnutzer mit Ausbauambitionen oder als Generationenprojekt – dieses Haus bietet viele Möglichkeiten und wartet auf neue Ideen.
Lage
Siersburg ist ein Ortsteil der Gemeinde Rehlingen-Siersburg und Sitz der Gemeindeverwaltung. Siersburg liegt am Ufer der Nied, einem linken Zufluss der Saar und ist Teil des Landkreises Saarlouis im Saarland. Der Ort hat eine Fläche von 949 ha und 4261 Einwohner
Die Gemeinde Rehlingen-Siersburg zeichnet sich durch hervorragende Wohnqualität aus. Die Anbindung an die Verkehrsachse Luxembourg-Saarbrücken, die deutsche Bahn und das Liniennetz des SaarVV (Verweis auf höhere Taktung ÖPNV) ermöglichen einen hohen Grad an Flexibilität. In Kombination mit den jeweils ortsnahen oder ortsinternen Einrichtungen zur Kinderbetreuung (KiTa, Kindergarten, Ganztagesschule, Betreuung) (Verweis auf Ausbau Kindergärten und Schulen) bietet die Gemeinde die optimalen Voraussetzungen für junge Familien. Aber auch im Alter ist die Gemeinde noch sehr lebenswert. Durch Projekte wie mobile Einkaufmöglichkeiten und die Mitnahmebank ist man nicht mehr auf ein eigenes Auto angewiesen.
In allen Ortsteilen gibt es zahlreiche Möglichkeiten zur Naherholung, sowohl für aktive Freizeitgestaltung beim Wandern, Nordic-Walken, Fahrradfahren, Klettern, als auch für in ihrer Aktivität eingeschränkten Menschen, wie kurze befestigte Wege.
Die Freizeitgestaltung in der Gemeinde ist vielfältig und reicht von zahlreichen Kultur- und Sportvereinen und –Veranstaltungen über ehrenamtliche Tätigkeiten bei Wohlfahrtsverbänden bis hin zu einer breit gefächerten politischen Landschaft.
Ausstattung
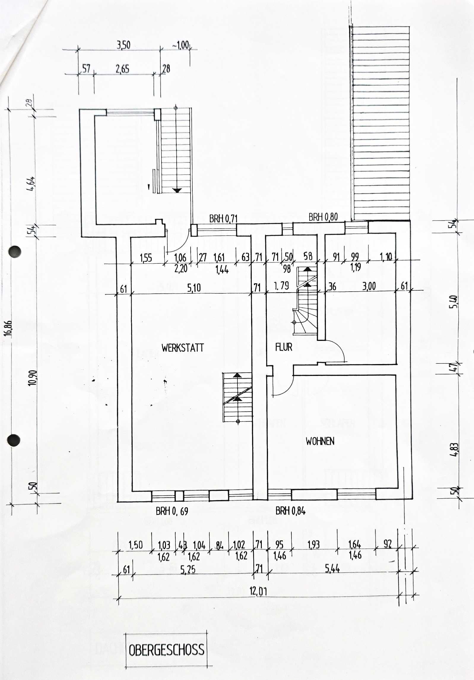
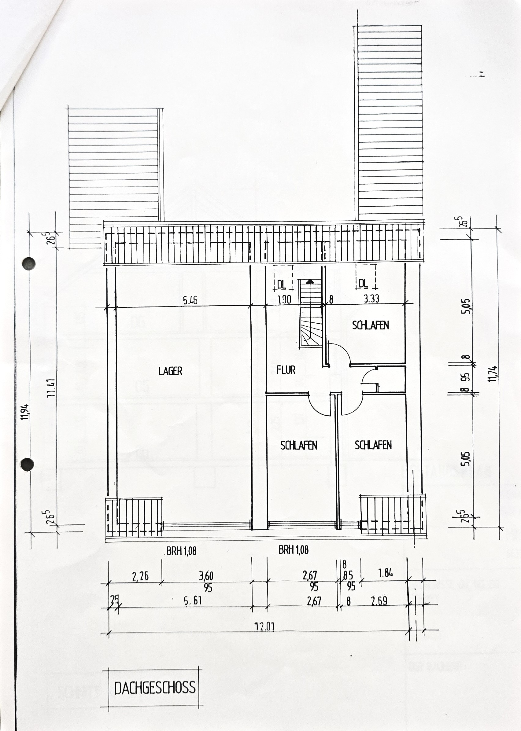
Aufteilung:
EG: 2xLagerraum, 2 Zimmer
OG: großer Raum, 2 Zimmer
DG: großer Raum, 3 Zimmer
Anbau auf der Rückseite des Hauses aus 2000
Dach aus 2000
Heizung: Öl-Zentral mit Warmwasserspeicher aus: 2014
Fenster: Holzfenster, doppelt verglast, älter als 30 Jahre
Elektrik teilweise erneuert in 2000
Sonstiges
BEI INTERESSE GEBEN SIE BITTE IMMER IHRE VOLLSTÄNDIGEN KONTAKTDATEN (Name, E-Mail, Telefon-Nr.) AN! Nur so können wir Sie erreichen und Ihnen ein Exposé sowie weitere Daten zum Objekt zusenden!
Wir bieten nicht nur eine ständige Erreichbarkeit, sondern auch Service am Wochenende und ggf. an Sonn-und Feiertagen.
Sie erreichen uns auch via "What's App"!
Sie wollen Ihre Immobilie ebenfalls professionell vermarkten? Rufen Sie uns an, wir stehen Ihnen persönlich zur Seite.
Viele aktive Interessenten warten bereits auf Sie!
Gerne beantworten wir Ihnen alle weiteren Fragen am Telefon oder einem persönlichen Gespräch vor Ort.
Sonstiges:
1)Die Exposéangaben wurden nach Aussagen und vorgelegten Unterlagen des/der Eigentümer/s erstellt. Angaben zu Größen und Abmessungen sind ca.- Angaben und bedürfen ggf. einer örtlichen Prüfung. Für die Richtigkeit und Vollständigkeit der Angaben übernimmt DeVille Immobilien keine Haftung. Der Interessent ist zur selbständigen Prüfung der Angaben verpflichtet.
2)Angaben zum Objekt sind nur für den Empfänger bestimmt und streng vertraulich zu behandeln. Die Weitergabe an Dritte ohne Zustimmung seitens DeVille Immobilien wird untersagt und ist schadensersatzpflichtig.
3)Beim Abschluss des Kaufvertrages über ein von der Firma DeVille Immobilien nachgewiesenes bzw. vermitteltes Objekt ist die vereinbarte Provision verdient und sofort fällig. Die Provision ist ebenfalls verdient und fällig, wenn der Kunde die erhaltenen Informationen an einen Dritten weitergibt und dieser den Kaufvertrag abschließt.
Energieausweisangaben
- Heizungsart Öl-Heizung
Herzlichen Dank für Ihre Anfrage.
Wir werden diese so schnell wie möglich bearbeiten.